Preço do imóvel
Sob consultaApresentação do Lote e Plano Diretor Municipal (PDM)
- Detalhes do Lote e da Construção

- Expansão da Capacidade do Hotel
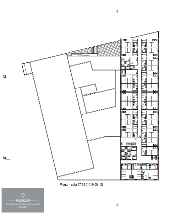
– Acomodações: A capacidade do hotel aumentará de 71 para 119 unidades de alojamento, correspondendo a 238 camas. Esse crescimento visa atender à demanda do mercado e melhorar a viabilidade financeira do projeto.
- Reconfiguração do Bloco
– Unidades Residenciais: O número de unidades residenciais será reduzido para 56, e o novo plano abrange:
– 148 unidades de habitação coletiva
– 44 casas unifamiliares
– 165 m² destinados ao comércio
- Design e Configuração do Hotel
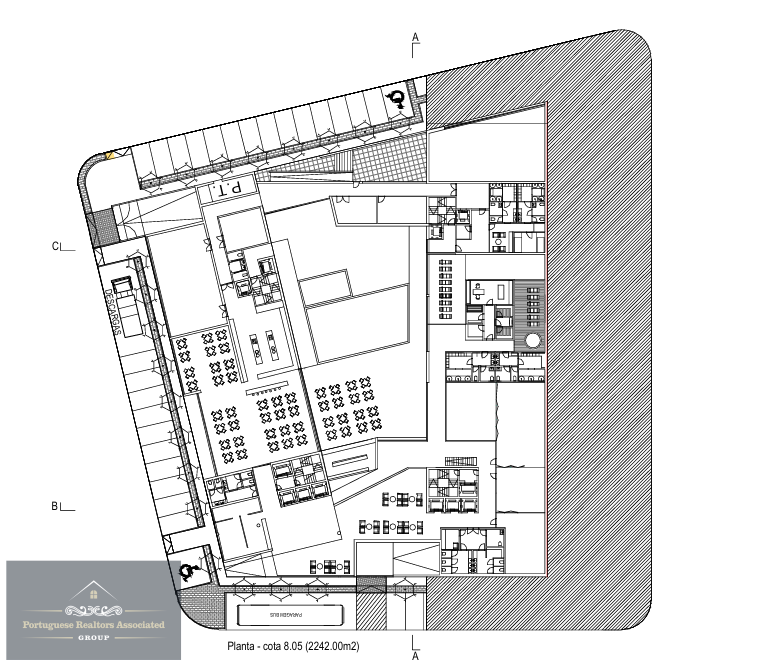
– Estrutura do Hotel: O projeto inclui três pisos acima do solo e um nível semi-subterrâneo, aproveitando a inclinação natural do terreno.
– Layout: O hotel será composto por duas alas organizadas em torno de um pátio central, com paisagismo, piscina e terraço.
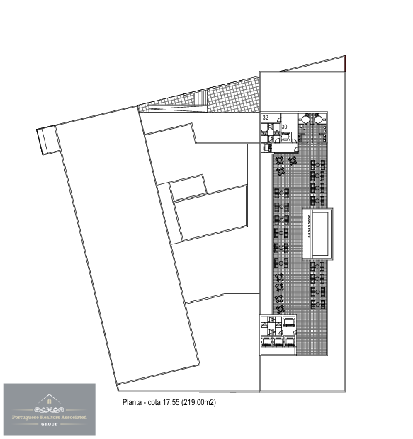
– Instalações Adicionais: Restaurantes, bares, espaços flexíveis para eventos, salas de reunião, solário e spa.
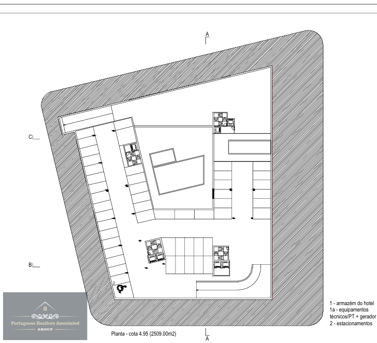
- Estacionamento e Acessibilidade
– Estacionamento Subterrâneo: O projeto prevê pelo menos 50 lugares, além de estacionamento específico para dois autocarros próximo à entrada principal. Estacionamento para pessoas com mobilidade reduzida e áreas designadas para carga e descarga também no lado oposto do quarteirão.
- Planejamento Territorial e Urbano
– Alinhamento com o PDM: O projeto foi desenvolvido em conformidade com o Plano Diretor Municipal de Tavira (PDM) e as normas de proteção do Parque Natural da Ria Formosa. A proposta garante o cumprimento dos regulamentos territoriais e urbanísticos, promovendo uma integração harmoniosa com o ambiente circundante.
Conformidade Legal e Técnica
– Área Média por Quarto: A área bruta média de construção por quarto é de aproximadamente 63 m², em conformidade com as diretrizes estabelecidas para a categoria do hotel.
– Impacto no Turismo: O projeto contribui para a estratégia regional do Algarve de melhorar os serviços de hotelaria e restauração em áreas urbanas de alta qualidade, apoiando o crescimento do setor turístico.
– Integração com o Ambiente: O design do hotel foi pensado para favorecer a acessibilidade e promover a mobilidade pedonal, criando uma conexão mais forte entre o hotel e seus arredores urbanos.










Recomendação Final
Após a revisão técnica e urbanística, o Turismo de Portugal emite uma recomendação favorável para o desenvolvimento do terreno e a expansão do projeto hoteleiro. A proposta está em conformidade com os padrões de planejamento e terá um impacto positivo na infraestrutura turística local.
Essa estrutura facilita a compreensão dos principais pontos do projeto, destacando sua conformidade com o PDM e os benefícios esperados para o desenvolvimento local.
PRAG GROUP ®
“Deixe tudo connosco!”
- Referência: PRG278-AD
- Estado: Novo
- Objetivo: Venda
- Tipo de imóvel: Terrenos
A Certificação Energética classifica o desempenho energético de um imóvel numa escala de A+ (muito eficiente) a F (pouco eficiente) e recomenda medidas de melhoria a implementar ao nível do conforto térmico, destacando as de maior viabilidade económica.
(*) Devido à recente alteração da legislação sobre certificação energética de edifícios (Decreto-Lei n.° 1182013, de 20 de Agosto) e ao elevado número de processos em curso, o certificado energético deste imóvel já foi solicitado, mas encontra-se em fase de apreciação e desenvolvimento pelas entidades competentes.

