Preço do imóvel
Sob consultaLocalizado em Quarteira Nascente, este terreno urbano apresenta projeto aprovado para a construção de 10 moradias geminadas T3, a escassos metros da Praia do Almargem e próximo de Vale do Lobo.
O empreendimento foi pensado para se integrar de forma harmoniosa na envolvente, oferecendo habitações contemporâneas e funcionais.
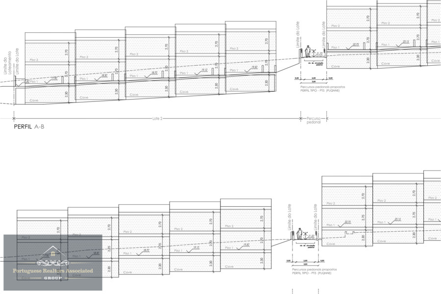
Cada moradia desenvolve-se por três pisos mais cave, dispondo de garagem privativa e piscina individual, garantindo conforto e privacidade elevados.
Com uma área total de 2.525,7 m² e uma área de construção de 1.641,70 m², acrescida da cave, o projeto distribui-se por dois lotes independentes:
- Lote A (urbano): 754,7 m², com entrada própria, abastecimento de água e edificação existente de 258 m².
- Lote B (rústico, com futura conversão para urbano segundo PDM): 1.771 m², com viabilidade urbanística assegurada.
A envolvência destaca-se pela proximidade de praias de referência, assim como pela facilidade de acesso a serviços, comércio e infraestruturas essenciais.
Situa-se a poucos minutos de Vilamoura, Vale do Lobo e Quinta do Lago, beneficiando de uma localização estratégica no Algarve.
Este projeto constitui uma oportunidade singular de desenvolvimento habitacional, combinando localização privilegiada, conceção cuidada e potencial de valorização sustentada.





PRAG GROUP ®
“Deixe tudo connosco!”
- Referência: PRG246-AD
- Estado: Em Projecto
- Objetivo: Venda
- Tipo de imóvel: Moradias, Terrenos
A Certificação Energética classifica o desempenho energético de um imóvel numa escala de A+ (muito eficiente) a F (pouco eficiente) e recomenda medidas de melhoria a implementar ao nível do conforto térmico, destacando as de maior viabilidade económica.
(*) Devido à recente alteração da legislação sobre certificação energética de edifícios (Decreto-Lei n.° 1182013, de 20 de Agosto) e ao elevado número de processos em curso, o certificado energético deste imóvel já foi solicitado, mas encontra-se em fase de apreciação e desenvolvimento pelas entidades competentes.

