Preço do imóvel
1.800.000 €Terreno urbano destinado à construção de edifício de habitação coletiva, comércio e serviços, com uma área total de 868 m².
O Lote n.º 5 localiza-se em Loulé, inserido em zona urbana consolidada e servida por todas as infraestruturas essenciais, beneficiando de uma boa integração no tecido urbano existente e de proximidade a áreas residenciais, comércio e equipamentos públicos.
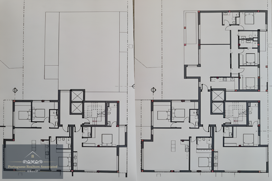
O projeto previsto contempla a construção de um edifício com seis pisos acima da cota de soleira e um piso em cave, totalizando 23 fogos habitacionais, complementados por áreas destinadas a comércio e serviços no piso térreo.
Dados Principais:
- Área total do terreno: 868 m²
- Área de implantação do edifício: 571 m²
- Área bruta de construção total: 2.579 m²
- Habitação: 2.424 m²
- Comércio/Serviços: 155 m²
- Área bruta dependente: 619 m²
- Volume de construção: 8.381,75 m³
- Número de pisos: 6 + cave
- Número de fogos: 23
- Finalidade: Habitação coletiva / Comércio / Serviços
Enquadramento:
O Lote n.º 5 insere-se numa área de uso misto, com predominância habitacional e presença de comércio e serviços de proximidade.
A sua localização, inserida em zona urbana consolidada e bem infraestruturada, proporciona condições adequadas para o desenvolvimento de um edifício multifuncional alinhado com as dinâmicas de crescimento e densificação do concelho de Loulé.
https://maps.app.goo.gl/Y6d2u2s365wf5Ki89


PRAG GROUP ®
“Deixe tudo connosco!”
- Referência: PRG131-AD
- Estado: Novo
- Objetivo: Venda
- Tipo de imóvel: Quintas e Herdades
A Certificação Energética classifica o desempenho energético de um imóvel numa escala de A+ (muito eficiente) a F (pouco eficiente) e recomenda medidas de melhoria a implementar ao nível do conforto térmico, destacando as de maior viabilidade económica.

