Preço do imóvel
850.000 €Terreno em localização excecional e zona de grande valorização. Envolvente em pinhal e vista panorâmica sobre o mar e a Nazaré.
. Área de implantação (máx.) – 677,00 m2
. Área total de construção habitação – 2031,00 m2
. Área total de construção em cave – 740,00 m2
. Cota de soleira – Variável
. N.º de pisos acima da cota da soleira – 3
. N.º de pisos abaixo da cota da soleira – 1
. N.º de lugares de estacionamento – 22
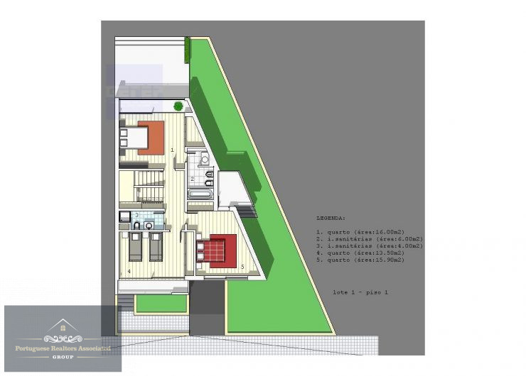
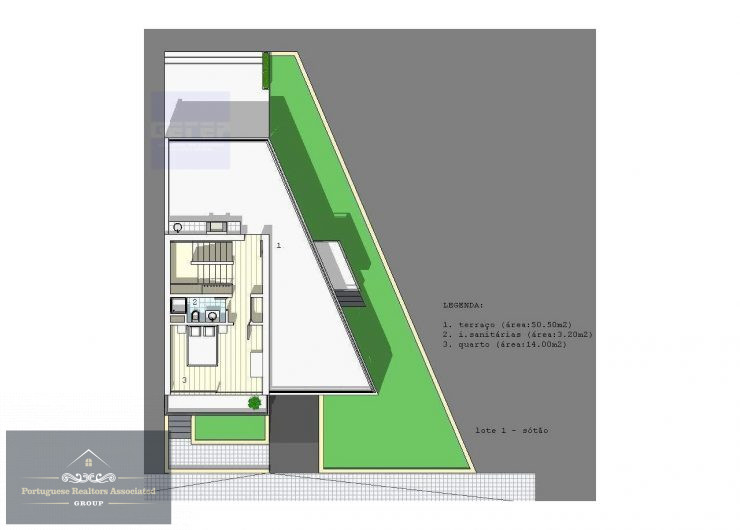
. Uso da edificação:
Apartamentos (8 T2 + 8 T1) ou 8 Moradias T3 em banda.
EN
Land in exceptional location and area of great appreciation. Enveloping in pine forest
and panoramic views of the sea and Nazaré.
. Deployment area (max.) – 677.00 m2
. Total area of housing construction – 2031.00 m2
. Total area of construction in basement- 740.00 m2
. Solet quota. – Variable
. Number of floors above the solet quota – 3
. Number of floors below the soper quota – . 1
. Number of parking spaces – 22
. Use of building:
Apartments (8 T2 + 8 T1) or 8 Townhouses.
PRAG GROUP ®
“Deixe tudo connosco!”
- Referência: PRG031-AP
- Estado: Novo
- Objetivo: Venda
- Tipo de imóvel: Terrenos
A Certificação Energética classifica o desempenho energético de um imóvel numa escala de A+ (muito eficiente) a F (pouco eficiente) e recomenda medidas de melhoria a implementar ao nível do conforto térmico, destacando as de maior viabilidade económica.

